047 Bergbach-siedlung
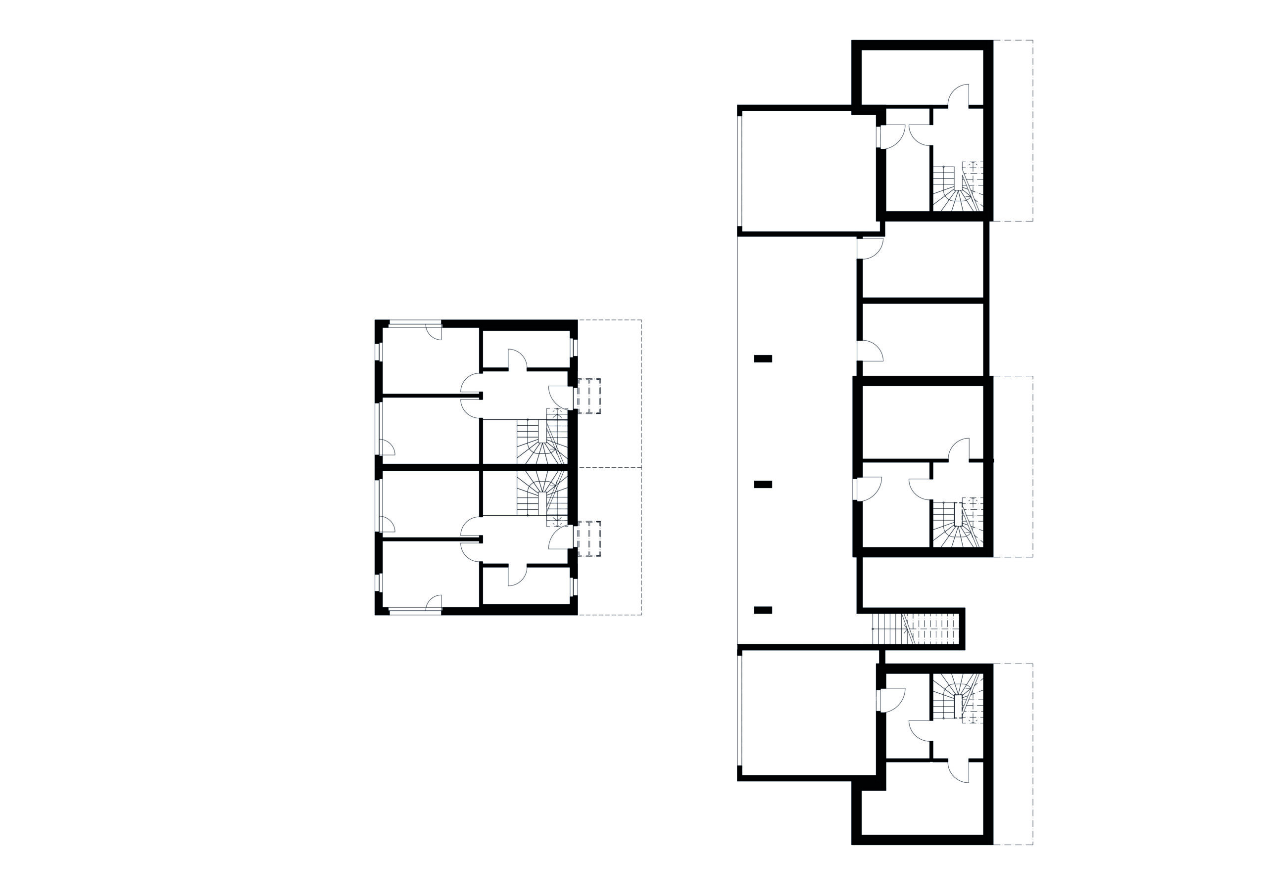
Am Hang des Uerkheimer Bergbachs entsteht eine abgestufte Wohnsiedlung mit fünf Einfamilienhäusern.
Die dreieckige Parzelle fällt sanft zum Tal hin ab und prägt die Setzung der Baukörper. Drei Einfamilienhäuser gruppieren sich im oberen Bereich, während ein Doppeleinfamilienhaus den unteren Abschluss bildet.
Transparenz, Durchblicke und gemeinschaftliches Wohnen prägen das architektonische Konzept. Die Gebäude orientieren sich an der Topografie, öffnen sich zur Landschaft und schaffen ein harmonisches Zusammenspiel von Raum und Umgebung.
Bauauftraggeber:
LW Immobilien AGStandort:
Uerkheim, SchweizPhase:
BaugesuchBautyp:
NeubauKategorie:
Wohnungsbau, Einfamilienhaus
Date:
August 9, 2025
